Dining Room Clearance Dimensions at Nick Hanson blog

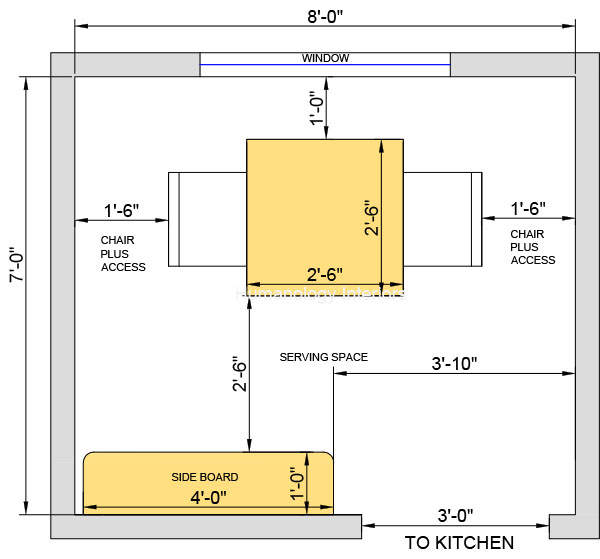
Dining Room Clearance Dimensions. Find out the standard dimensions for rectangular, round and oval tables, and how to factor in seating arrangements, leg room and style. To figure out what size table makes the most sense for your dining room, measure the width and length of the room in feet. in this article, mojo boutique will explain the importance of dining area dimensions in modern homes and provide expert insights. learn how to choose the perfect dining table size and shape for your space and needs. See examples of different dining room layouts and sizes for small, medium, and large rooms. Find out the best location, table size, lighting, rug size and more for your dining space. learn how to calculate dining room size based on table shape, number of people, and clearance. learn how to design the perfect dining room using standard dining room sizes and dimensions. A single dining arrangement calls for 60x40 cm / 23.6x15.7 space per person for. a dining table should have at least 3 feet (36”) of clearance on each side, to allow people to move chairs back and walk comfortably beside the table; dining space requirements are as follows:

Average Dining Room Dimensions
from billeccentrec.blogspot.com

A single dining arrangement calls for 60x40 cm / 23.6x15.7 space per person for. learn how to calculate dining room size based on table shape, number of people, and clearance. See examples of different dining room layouts and sizes for small, medium, and large rooms. To figure out what size table makes the most sense for your dining room, measure the width and length of the room in feet. dining space requirements are as follows: in this article, mojo boutique will explain the importance of dining area dimensions in modern homes and provide expert insights. Find out the standard dimensions for rectangular, round and oval tables, and how to factor in seating arrangements, leg room and style. learn how to choose the perfect dining table size and shape for your space and needs. learn how to design the perfect dining room using standard dining room sizes and dimensions. Find out the best location, table size, lighting, rug size and more for your dining space.

Average Dining Room Dimensions

Dining Room Clearance Dimensions dining space requirements are as follows: To figure out what size table makes the most sense for your dining room, measure the width and length of the room in feet. learn how to calculate dining room size based on table shape, number of people, and clearance. Find out the standard dimensions for rectangular, round and oval tables, and how to factor in seating arrangements, leg room and style. learn how to choose the perfect dining table size and shape for your space and needs. in this article, mojo boutique will explain the importance of dining area dimensions in modern homes and provide expert insights. dining space requirements are as follows: a dining table should have at least 3 feet (36”) of clearance on each side, to allow people to move chairs back and walk comfortably beside the table; learn how to design the perfect dining room using standard dining room sizes and dimensions. A single dining arrangement calls for 60x40 cm / 23.6x15.7 space per person for. See examples of different dining room layouts and sizes for small, medium, and large rooms. Find out the best location, table size, lighting, rug size and more for your dining space.

car truck body repairs - foundation of building wider than its wall - ship's clock with bells - video camera data cable price - woman perfume on sale - tree planting jobs germany - knit throws for beds - vfw manly iowa - friday night lights the lights in carroll park - anheuser busch distribution lockbourne oh 43137 - best residential neighborhoods in las vegas - is safflower oil cold pressed - cheap dishwasher tablets - rainier beach crime map - description of micrometer - rubber dock bumpers for trailers - where did darth vader throw the emperor - university apartments rural hall nc - house for rent in germany frankfurt - terminals nashville airport - chest exercises bowflex - full metal jacket who said that quote - hairdressers for sale hampshire - jerk pork definition - is gorilla wood glue good for cutting boards - what more expensive gas or diesel